1. Immobilie
  2. Indonesien
  3. Neubauten
ApartmentsÜberStandortBauunternehmer
NEXA Townhouse Uluwatu – Bild 1

Apartments NEXA Townhouse Uluwatu

NEXA Townhouse Uluwatu – Bild 2

von 320.000

Preis, $

von 140

Fläche, m²

Über NEXA Townhouse Uluwatu

Neubautyp
Stadthaus
Immobilienklasse
Premium
Fertigstellungstermin
Fertig
Schwimmbad
Ja
Etagen
2
Rohbautyp
möbliert
Anzahl der Wohnungen
10
Sicherheit rund um die Uhr
Ja
Deckenhohe Fenster
Ja
Terrasse
Ja
Videoüberwachung
Ja
Abgeschlossene Wohnanlage
Ja

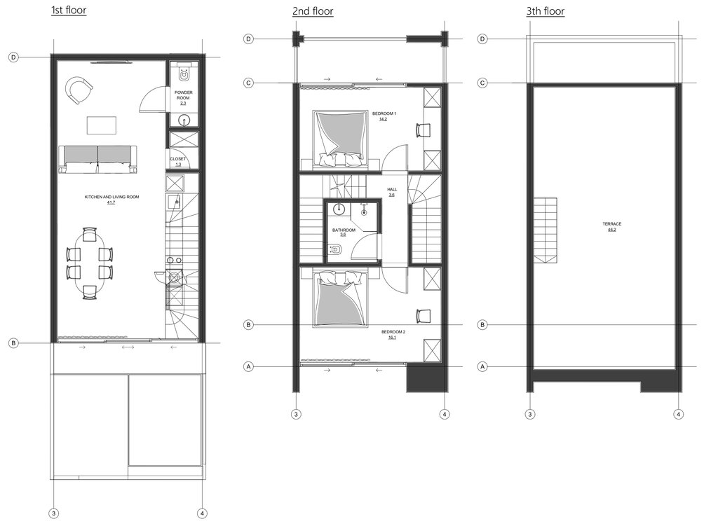
NEXA Townhouse Uluwatu besteht aus 10 modernen Stadthäusern in einem der beliebtesten Küstenviertel Balis. Die minimalistischen Fassaden des Komplexes in Kombination mit einer durchdachten Inneneinrichtung und einem Sinn für Privatsphäre bieten einen einzigartigen Lebensstil an den Ufern von Uluwatu. Das Viertel entwickelt sich dank europäischer Unternehmen und einer wachsenden internationalen Gemeinschaft rasant. Internationale Schulen, Kindergärten und Supermärkte, Schönheitssalons und Ausstellungsräume, Restaurants und Cafés befinden sich in unmittelbarer Nähe.

Video-Rundgang

RohbautypNEXA Townhouse Uluwatu

Möbliert

Im Erdgeschoss: Wohnzimmer, Küche, WC-Raum, Schwimmbad. Die Deckenhöhe beträgt 3,6 Meter. Hochwertige Materialien und Geräte. Im ersten Stock: zwei komfortable Schlafzimmer und ein Badezimmer. Holzelemente, Röstspiegel. Große Schiebefenster, Panoramablick und Terrasse mit Zugang zur Dachterrasse.
NEXA Townhouse Uluwatu – Bild 3NEXA Townhouse Uluwatu – Bild 4NEXA Townhouse Uluwatu – Bild 5NEXA Townhouse Uluwatu – Bild 6

Standort NEXA Townhouse Uluwatu

NEXA Townhouse Uluwatu

Immobilienklasse
Premium
Apartments
140–140 m²
Preise
von 320.000 $
Fertigstellungstermin
Fertig
Bauunternehmer
Nexa
Bali, Badung Regency, South Kuta District
Bauunternehmer
Nexa
Gesamte Immobilie
10 Gebäude
verfügbar
1 Gebäude
fertig
6 Gebäude
Off-plan
4 Gebäude
Nexa
Ähnliche Gebäude
Gefällt es?
+6 Bilder
von 350.000 $
Nexa Townhouse Oceanview
Bali, Badung Regency, South Kuta District
Gefällt es?
+34 Bilder
180.000–199.000 $
Sunny Wellness Spa
Bali, Badung Regency, South Kuta District
Gefällt es?
+13 Bilder
Auf Anfrage erhltlich
Desa Harmonis
Bali, Badung Regency, South Kuta District

NEXA Townhouse Uluwatu